|
RST-0167 Technical Details |
Stylish design deck-mounted automatic sensor tap with capacitive sensor
- Features
- Technical Details
- Dimension
- Contents
- Functions
- Temperature Control
- Add-ons
Features
Stylish streamline design sensor tap
Capacitive 'sensor-less' activation
Solid brass construction design
Single supply
4XAA Alkaline batteries (2-Year lifespan)
Hands free capacitive activation technology
Flexible supply hose
Water pressure required: 0.5-7 Bar (1 bar or above for best performance)
Finish: Chrome-plated
Capacitive Technology
This sensor tap should not be installed on a metal or highly-conductive sinks. Ceramics, wood, granite and other non-conductive worktops are ok.
Special Notes:Water pressure:
Water pressure range: 0.7 (Min) - 8 Bar (Max) (1 bar or above for best performance)
QUICK VISUAL DATA
![]() |
![]() |
![]() |
|
| This sensor tap can be powered by Batteries (DC) only | This sensor tap comes with a single water supply feed | 30-35mm |
TECHNICAL DETAILS
Diameter of 'inlet' pipe: G1/2”
Diameter of 'outlet' pipe: G1/2”
Water pressure range: 0.7 (Min) - 8 Bar (Max)
Voltage: DC6V
Power consumption: =0.3MW
Sensing distance: 5-20cm
Respond time: 1 Second
Battery Consumption (DC): 4xAA alkaline batteries (2 years lifespan depending on level of usage)
Silent Consumption: 0.003W
Environment Temperature: 1-45 C
Flow Rate: 5L/Per minute
Pipe Threading: British Standard Whitworth (BSW)
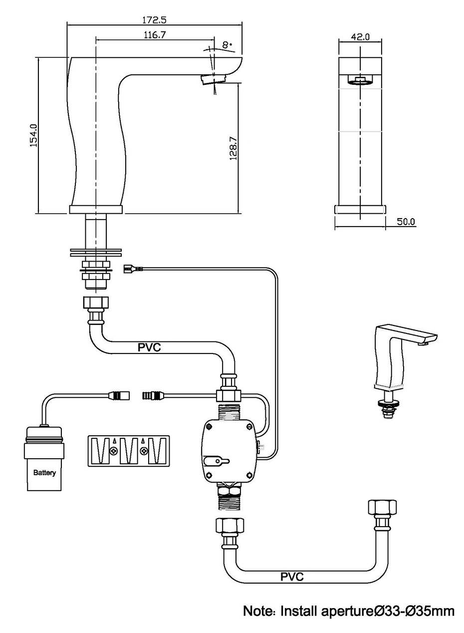
DIMENSION:

CONTENTS
1x Sensor Tap
1x Capacitive control Box (*battery compartment inside)
4x AA Alkaline Batteries (Subject to availability)
1x Flexible G1/2" *600mm Connection Hose
Fittings and Screws
Capacitive Technology
This sensor tap should not be installed on a metal or highly-conductive sinks. Ceramics, wood, granite and other non-conductive worktops are ok.
Water pressure:
Water pressure range: 0.7 (Min) - 8 Bar (Max) (1 bar or above for best performance)
Temperature control:
This sensor tap is designed to be supplied with pre-mixed water. Consideration should be given to safe hot water delivery and the use of an appropriate temperature reduction device. See images below.
Manual blending valve:
ABV-0012
Water temperature is controlled manually.
Thermostatic mixer valves:
ATV-9004B
ATV-9004C
ATV-9004
Water temperature is regulated automatically.
|
Option 1: ATV-9004C
This thermostat can be connected directly to the control box using its 1/2" female outlet connector. This method is usually the quickest way to setup installation. |
|
|
Model: ATV-9004 |
|
|
Option 4 : ABV-0012
This is a manual blending valve only. There's no thermostatic mixing element inside, any desired temperature can only be achieved manually by turning the knob clockwise or anti-clockwise. |
Nothing to display.











